Tävlingsvinst på kilformad tomt - småskaligt trots buller

En tävlingstomt med ett bullerutsatt läge, en svår kvartersform, och önskemål om många bostäder - hur kan vi ändå skapa en grönskande, småskalig miljö?

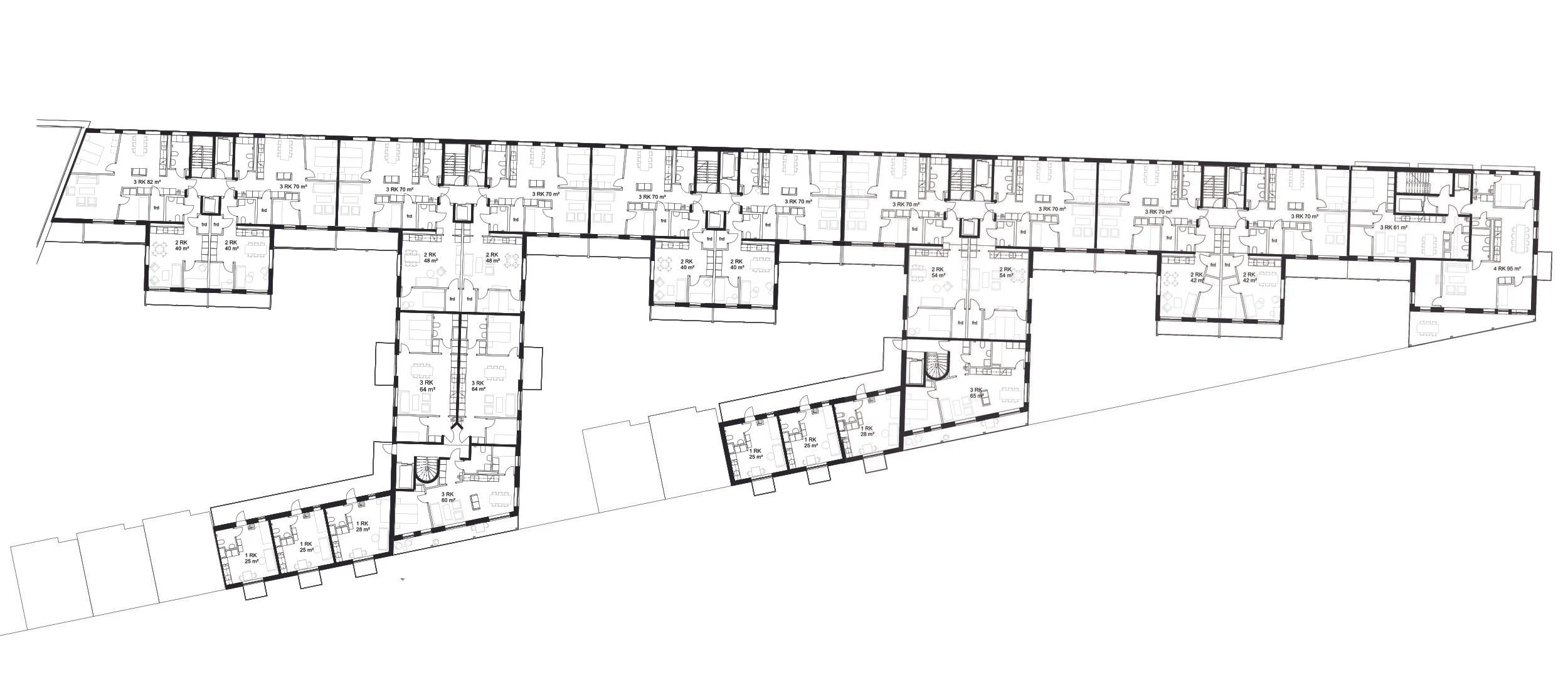
En hög länga får nedtrappande delar som kan omsluta och bullerskydda soliga gårdar och en intim lokalgata med entréer och smålokaler. Radhus livar upp lokalgatan ännu mer och överbryggar kanten till den upphöjda gården.

Tävlingen handlade om två kvarter, varav vi vann det ena.

Bild: White

Bullerproblematiken hanteras helt med planlösning och hushöjder, utan några tekniska åtgärder.

Kvarteret byggs upp av stomblock som upprepas. Den kilformade tomten utnyttjas maximalt. Samtidigt gör de smala husmåtten och nedtrappningen av volymerna att gårdar och bostäder ändå får gott om ljus och generösa balkonger. 

På gårdsplanet förbinds gårdsentréer med varandra och med entréer från lokalgatan och motorvägen.

Även radhusen binder ihop gårdsnivån med lokalgatan, och döljer gårds-/garagekanten.

  • År: 2018

  • Skede: Parallella uppdrag

  • Roll: del i tävlingsteamet White

  • Arbete: planlösning, gestaltning, modellering m.m.

  • Beställare: Midroc

  • Storlek: 280 lgh/radhus
    ca 21 000 m² BTA bostad + lokaler

  • Plats: Kvarteret G Årstafältet Sthlm

Previous
Previous

+ Prisnominerade råa bostäder

Next
Next

+ Smålägenheter och fasadrelief